Trasferimento dell’Ambulatorio Veterinario: l’Amministrazione è attiva per garantire la continuità del servizio

L'Amministrazione comunale ha garantito la massima disponibilità a supportare l’ambulatorio nel delicato processo di trasferimento
Data:

31/07/2025

Argomenti
Tipologia di contenuto
  • Comunicato stampa
© Comune di Cortina d'Ampezzo - Licenza proprietaria

Descrizione

L’Amministrazione comunale di Cortina d’Ampezzo comunica che, a seguito della necessità di liberare l’attuale sede dell’ambulatorio veterinario, si è immediatamente attivata per garantire la prosecuzione del servizio, ritenuto essenziale per la comunità e il benessere.
In piena condivisione con i medici veterinari del territorio, sono già state individuate e definite due soluzioni:

- Una sede temporanea presso un immobile comunale a Fiames, già predisposto e pronto per l’uso. Si stanno completando in queste ore alcune piccole migliorie richieste dall’AULSS 1 Dolomiti per la piena rispondenza ai requisiti sanitari. Le operazioni di trasloco a cura dei veterinari possono comunque già essere avviate e ilComune ne ha garantito il massimo supporto (si vedano foto allegate).

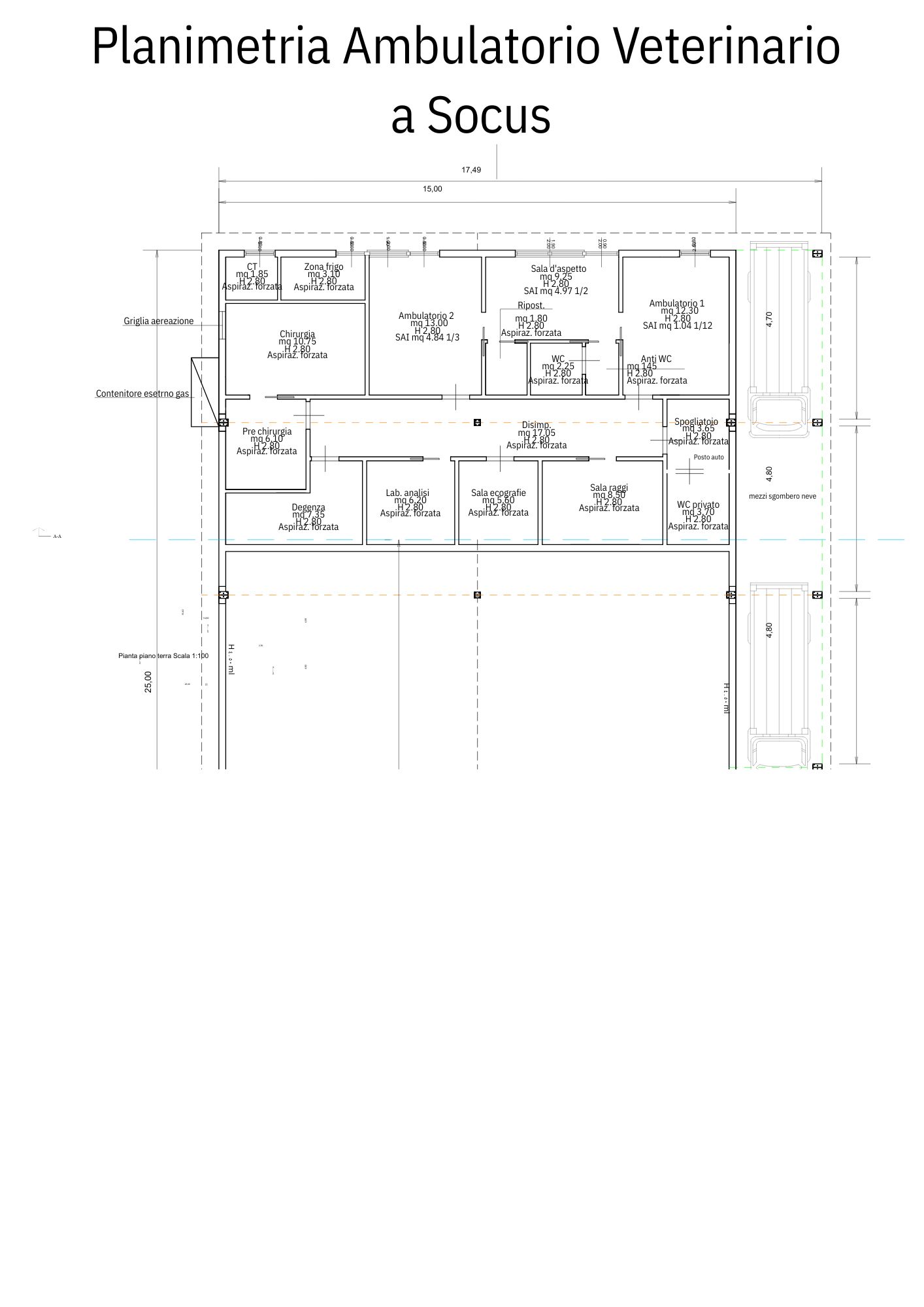
- Una sede definitiva a Socus, per la quale è già stato predisposto il progetto. L’intervento è attualmente in fase di iter amministrativo e l’Amministrazione prevede che sarà ultimato entro l’autunno. La nuova struttura offrirà spazi adeguati, modernie  funzionali, in grado di garantire stabilità e qualità al servizio. (si veda planimetria allegata)

Fin dalle prime comunicazioni ufficiali, l’Amministrazione comunale ha garantito la massima disponibilità a supportare l’ambulatorio nel delicato processo di trasferimento. In particolare, sono stati messi a disposizione gli uffici comunali del settore tecnico e patrimonio, per
affiancare l’ambulatorio veterinario sia nella fase logistica (liberazione e accesso ai nuovi locali), sia nella gestione organizzativa dei passaggi formali. Questo approccio collaborativo, confermato anche per iscritto, mira a ridurre al minimo i disagi per chi opera nel servizio e per gli utenti.

Dichiarazione del Sindaco Gianluca Lorenzi
"Queste soluzioni rappresentano una testimonianza concreta dell’impegno dell’Amministrazione comunale, che conferma l’attenzione e la sensibilità verso un servizio fondamentale per Cortina e per tutta la valle".

Dichiarazione dell’Assessore Monica De Mattia
"Abbiamo seguito con attenzione questa vicenda sin dall’inizio, con particolare sensibilità e coinvolgimento. Il Comune ha offerto la propria disponibilità a supportare il personale dell’ambulatorio nel processo di trasferimento, facilitando gli aspetti logistici e organizzativi.
Abbiamo agito con spirito di collaborazione e con l’obiettivo di ridurre al minimo i disagi per operatori e cittadini."

Ultimo aggiornamento

Ultimo aggiornamento: 31/07/2025 16:06

Sito web e servizi digitali OpenCity Italia distributed by OpenCity Labs · Accesso redattori sito